



Fahrstuhlschacht


Bodenplatte
Mehrfamilienhaus
Mit einem Klick auf den Plan wird dieser vergrößert dargestellt.


Decke über KG


Decke über EG


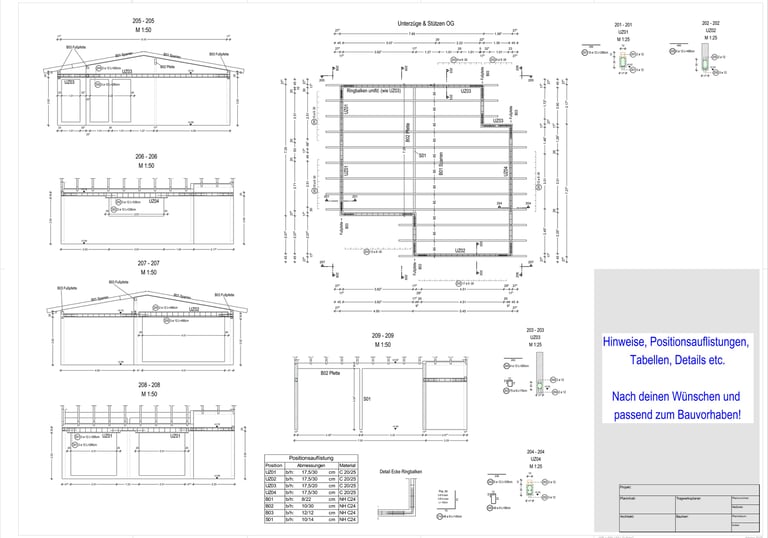
Decke über OG


Decke über TH



Obergeschoss






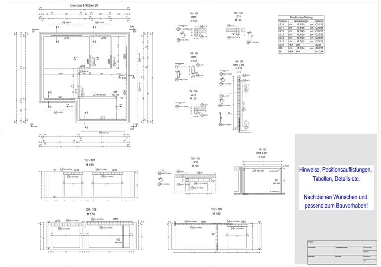
Decke über Erdgeschoss
Erdgeschoss
Gründung
Einfamilienhaus
Mit einem Klick auf den Plan wird dieser vergrößert dargestellt.



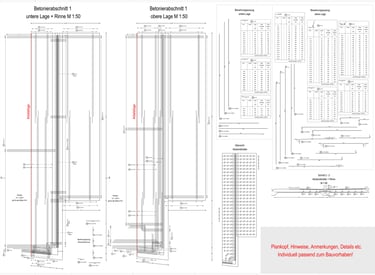
BA1 ober + untere Lage, Rinnenbewehrung + Abstandhalter
Industriebodenplatte
Mit einem Klick auf den Plan wird dieser vergrößert dargestellt.


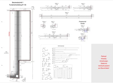
BA1 Fundamentvertiefung, Aufkantung, Pumpensumpf + Schnitte
Betonierabschnitt 2, 3 und 4 folgen in kürze!


Eric Meyer
office@em-bauingenieure.com
Eric Meyer
© 2025. All rights reserved.
Schal- und Bewehrungspläne










